No. 41 Belmont Avenue, Donnybrook, Dublin 4.
** PRE '63 3-STOREY VICTORIAN, IN NEED OF COMPLETE REFURBISHMENT AND RESTORATION **
CONTACT FINNEGAN MENTON on (01) 614 7900 or 086 823 5402
Finnegan Menton are delighted to bring to the market, this wonderful Victorian 2 storey over garden property.
Behind the red brick facade, No. 41 is in need of complete renovation and refurbishment, having also suffered some limited fire damage. As such, it offers an opportunity to those buyers not afraid of a project, whether intending to carry out a restoration to a family residence, or for those seeking an investment, utilising its Pre '63 status to convert to 5 income producing units.
A fine three storey red brick property, its Victorian architecture will no doubt appeal to a number of buyers, with its high ceilings being a common theme in a house that extends to approximately 2,213 sq.ft. The property has retained many other of its original period features including some well-proportioned rooms, cast iron fireplaces, sash windows, floorboards and doors.
The rear garden is a generous size and offers excellent potential to extend (SPP) and has the added advantage of pedestrian rear access.
Located on one of Dublin's best known residential addresses No. 41 Belmont Avenue is ideally positioned between Donnybrook and Ranelagh where there are a number of popular and trendy restaurants, pubs and cafes. In addition, there are a lots of supermarkets and boutique shops close by. Ranelagh LUAS is only minutes away giving you direct access to Dundrum Shopping Centre and the City Centre. The area is also well served by the 46a and 145 Dublin Bus routes and the Aircoach from Morehampton Road providing a direct link to Dublin Airport. Access to the M50 Motorway is quite easy via the N11.
There is an abundance of recreational amenities to choose from with tennis clubs, fitness clubs all located within a short stroll of the property together with Herbert Park which spans 32 acres of green open space. There are a number of excellent schools to choose from with St. Mary's N.S., Muckross Park College, Gonzaga College, and Sandford Park, all within walking distance.
Viewing is recommended.
TITLE:
We understand the title is held Long Leasehold - 600 years from the 29th September 1972.
Wonderful red brick Victorian property, 2 storey over garden
Offers potential as either a family residence or Pre '63 investment, to those
prepared to undertake a restoration project
Generous size rear garden with potential to extend (SPP) and pedestrian rear access
Walking distance to both Luas and Bus Stops
Excellent local amenities and schools within easy reach
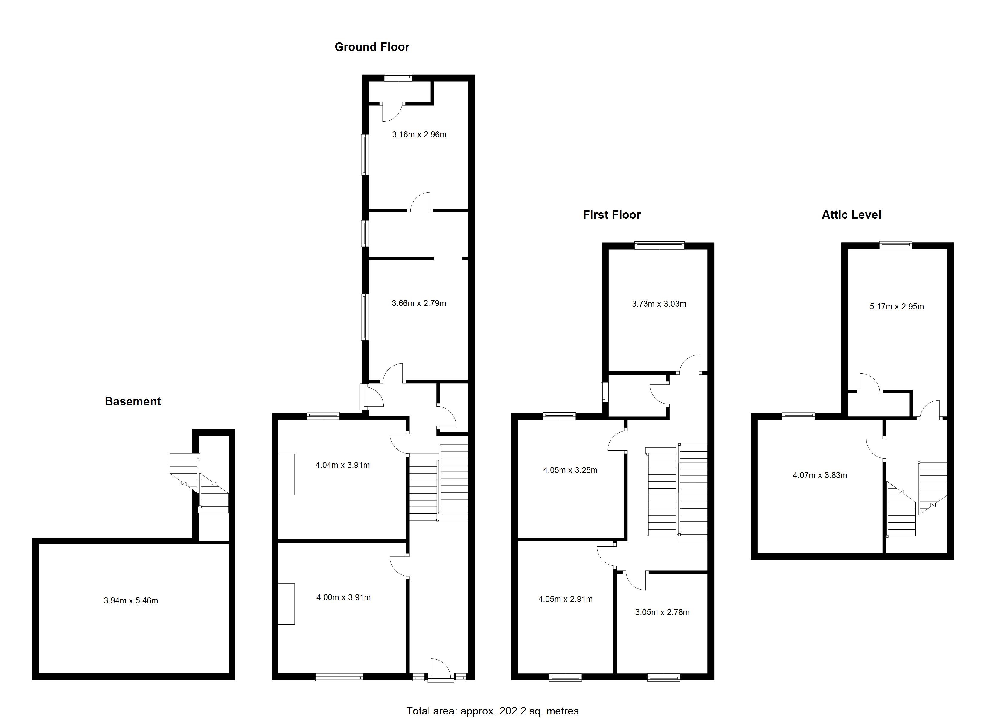
Basement c.3.94m x c.5.46m
GROUND FLOOR
Drawing Room c.4.00m x c.3.91m
Living Room c.4.04m x c.3.91m
Dining Room c.3.66m x c.2.79m
Kitchen c.3.16m x c.2.96m
W.C.
FIRST FLOOR
Bedroom 1 c.3.05m x c.2.78m
Bedroom 2 c.4.05m x c.2.91m
Bedroom 3 c.4.05m x c.3.25m
Bedroom 4 c.3.73m x c.3.03m
Bathroom
ATTIC FLOOR
Bedroom 5 c.4.07m x c.3.83m
Bedroom 6 c.5.17m x c.2.95m
Ensuite
By appointment only with sole agents Finnegan Menton. Contact Mark McCormack or Eugene Brennan on (01) 614 7900.





