44 Upper Mount Street, Dublin 2.
Prime Period Property + Mews (with development potential S.P.P)
Freehold
Vacant Possession
618.1 sq. m. (6,655 sq. ft.)
DESCRIPTION
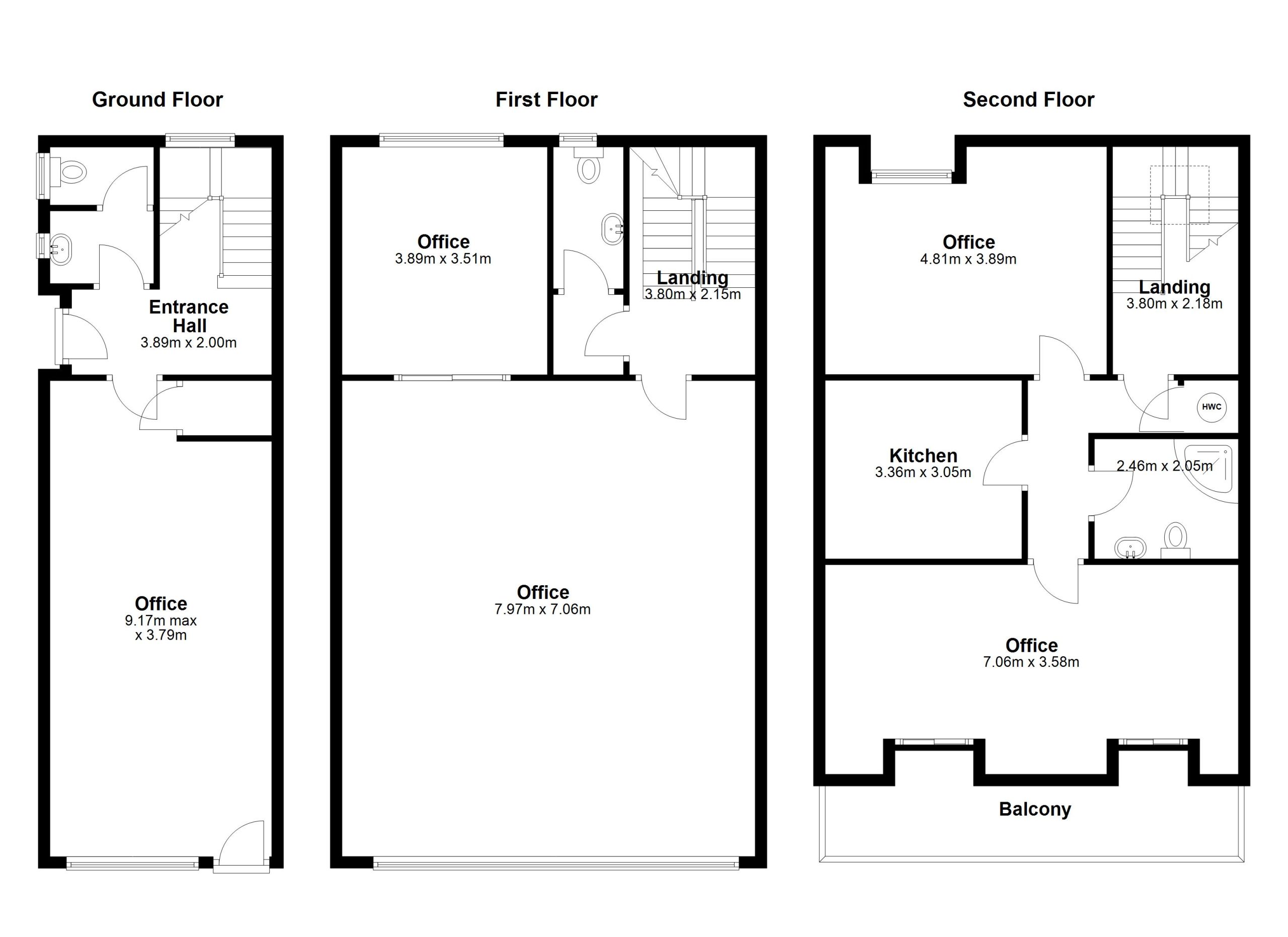
No. 44 Upper Mount Street is an imposing four storey over basement mid-terrace Georgian building and mews office building at 44 James Place East. The property extends to a net internal area of approximately 618.1 sq. m (6,655 sq. ft) in total of which approximately 468 sq. m (5,035 sq. ft) is contained in the original Georgian building including a substantial single storey, largely open plan rear extension at ground floor level. To the rear, the separate mews building, extending to approximately 150.3 sq. m (1,620 sq. ft), provides office accommodation over three floors which could be linked (SPP) to the extended front building or be retained as a separate unit. The Mews building to the rear at 44 James Place East is laid out over three floors and provides for a mix of open plan and cellular office accommodation.
LOCATION
No. 44 Upper Mount Street is situated in a highly sought after South City Centre location in Dublin’s prestigious and vibrant Georgian office district. Located towards the south side of Upper Mount Street midway between the junction with both Mount Street Cresent and Fitzwilliam Street Lower, close to the picturesque Pepper Cannister Church. The rear of the property is accessible via James Place East which links directly to Upper Mount Street with pedestrian access to Baggot Street and Fitzwilliam Street.
FEATURES
· Vacant possession
· High profile building in a prime City Centre location
· Retaining many fine Georgian features
· Separate Mews building with potential for conversion (SPP)
· 2 car parking spaces to the rear
· Freehold Title
BER
Exempt (Protected Structure)
TITLE
Freehold
PRICE
On Application
COMMERCIAL RATES
Main Building €18,612 (2026)
Mews €5,982 (2026)
VIEWING
Viewing is strictly by appointment with Selling Agents Finnegan Menton. Contact Nicholas Corson, Emma Byrne or Conor Timmins on 01 6147900
Nicholas Corson Email: ncosron@finneganmenton.ie
Emma Byrne Email: ebyrne@finneganmenton.ie
Conor Timmins Email: ctimmins@finneganmenton.ie




















